









New Portable Dual-Stall Restroom Unit ��� Commercial Grade & Mobile-Ready SU
Total Size: 9.2 ft (L) �� 6.6 ft (W)
Stall Size: 6.2 ft (L) �� 2.7 ft (W) each
Perfect for: Construction sites, festivals, parks, campgrounds, emergency response, and remote job sites.
������� Product Specifications (Imperial Units)
Category Details
Main Frame Steel structural frame
Chassis Reinforced steel base
Wall Panels 2��� (50mm) PET Composite Panels
Flooring 0.6��� (15mm) Plywood + 0.12��� (3mm) Non-Slip PVC Leather
External Finish Aluminum Alloy-Wrapped Composite Panel Doors (Double-Framed)
Ventilation Ceiling Fan with Integrated Light
Toilets Standard flushing toilets (2 units)
Basins Sink with faucet and basin cabinet (2 units)
Mirror Illuminated vanity mirrors
���� Plumbing & Drainage
Component Specification
W" (��75 mm) Drainage Line
Sink Drain" (��40 mm) Drainage Line
��� Electrical System
Power Supply 110V AC Compatible
Components Distribution Box, Circuit Breakers, Downlights, Leak Protection, Waterproof Sockets & 7-Core Plug
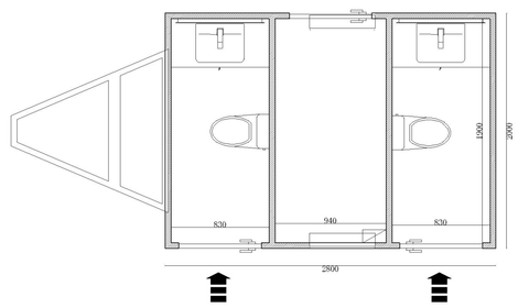
���� Floor Plan Dimensions (Imperial)
Total Length: 9.2 ft (2800 mm)
Total Width: 6.6 ft (2000 mm)
Each Stall: 6.2 ft (1900 mm) L �� 2.7 ft (830 mm) W
Middle Access Section Width: 3.1 ft (940 mm)
Interior Height: ~6.2 ft (1900 mm)
��� Key Benefits
Fully enclosed and climate-adaptable design
Private, clean, and professional appearance
Easy to transport via trailer hitch (standard triangle tongue)
Plug-and-play ready for pow